Client login
Enquire Now
0406100779
Send an email
Dream Home
Dream Projects
Extension and Renovation
About
Contact
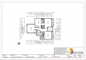
Block 20 Section 51 Throsby
Gallery
Client login